| Tavole del progetto di recupero | 
| 
		 | 
| Inserimento urbanistico | 
|   | 
| Museo Iso fronti esterni - ovest | 
| 
		 | 
| Sezioni AA - BB | 
|  | 
| Sezioni CC - DD | 
|  | 
| Sezionie EE | 
|  | 
| Prospetti Nord - Sud | 
|  | 
| Coperture | 
|  | 
| Piano Terra | 
|  | 
| Piano Terra (Particolare caffe) | 
|  | 
| Piano Primo | 
|  | 
| Piano Primo (Particolare Ristorante) | 
|  | 
| Centro Polifunzionale (Piano Terra) | 
|  | 
| Centro Polifunzionale (Piano Primo) | 
|  | 
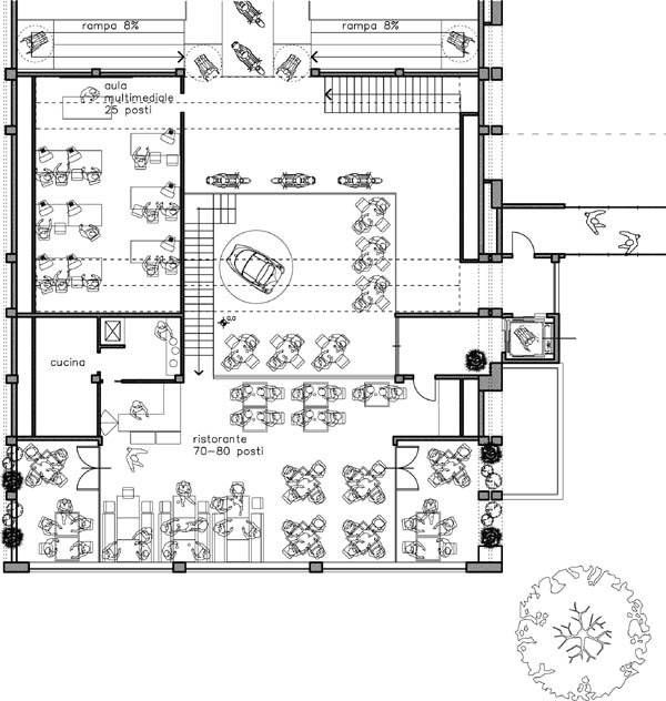
| Piano Interrato/Seminterrato | 
| Relazione PDF Settembre 2005 (Con Immagini) | |
| Relazione PDF Progetto Ottobre 2006 (Con Disegni) | |
| Per maggiori informazioni visita il sito: http://www.marcocesana.it/ | |
| 
 | Il Comitato Iso Millennium, Bresso |