The Project: ISO Museum

The idea

Discover a great reality which is known and appreciated all over the world. Experience the emotion of being the other Maranello" of Lombardy, which has been making both children and adults dream. This is at the basis of our idea, which we love calling Iso Museum".
For the latest news about the evolution of the activities for Iso Museum, please see the News page of this website. Thank you!

 

 

The Iso
Iso offers a very extraordinary history. The factory, founded by Renzo Rivolta, is part of the town; the charming output, from fridges to moto-cars and Isettas, reaches its pick with gran turismos. At the same time it becomes source of occupation and salary for families, as well as reason for proud and satisfaction for those who feel counsciously part of a big reality, not only industrial. That explains why the town, challenged by the Rivoltas, wanted to take part to this reality with their own support, engagement and energy. Sporting enterprises, extraordinary projects, prestigiuos names, admirers and fans from all over the world enrich this modern tale with further charm, which has been shining ever since.

 

The exigency

At the moment, being in a period of weak but significant evolution, Bresso wants to appear as a more liveable and town. Protecting the green areas without deleting the marks of a past rich in culture, style and technique, very important from a didactical point of view both for present and future generations is nowadays a real possibility. A great opportunity for the Bresso of the new millennium. 

 

 

The Museum

Try to fancy a big casket in which you can discover charming motor- jewels. Now fancy that the same casket is the same place where those innovative, elegant, precious vehicles, which could mark the life style of an epoch, were concepted and realized: a museum proposing its structure as an extraordinary historical document, as a frame of what it gathers.
A spotlight on Bresso, which since after the war has been transforming from a little agricoltural centre into an industrial town.

 

         

 

For the latest news about the evolution of the activities for Iso Museum, please see the News page of this website. Thank you!



Retrivial project of the previus ISO Rivolta Area
by Arch. Marco Cesana


Premise

In consequence of the great success of the Iso Millennium Meeting 2000, the homonymous Committee has not sirked the difficulties of trying to save at least part of the structures of the previous Iso factory. 
 

 

Tavole del progetto di recupero area ex ISO-Rivolta

 


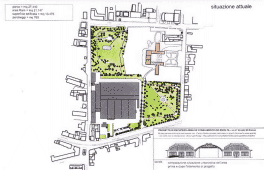
The actual area
Click picture to enlarge


The Project
Click picture to enlarge

Once thrown the petition out both in Bresso and through the Internet we have valued the possibility to go beyond the pure idea and give citizens and istitutions a concrete vision of how to protect and make enjoyable the spaces at issue, without prejudicing the enlargement of the town park dedicated to Renzo Rivolta.
   


External view - Front
Click picture to enlarge


External view - Back
Click picture to enlarge

This is the framework of the meeting between the Iso Millennium Committee and Arch. Cesana, and of the community of ideas and sensibility which have produced the following results.
 
   


Gallery view
Click picture to enlarge


Interior view
Click picture to enlarge

 
Marco Cesana has thrown himself into the developement  of something indispensable for Bresso, both from the point of view of the preservation of a precious memory, as Iso nowadays is, and  the importance of creating a structure which may give those spaces “for doing and meeting” which our city lacks. 
   


Esposition of a car - Museum
Click picture to enlarge


Esposition motorcycles view - Museum
Click picture to enlarge 


Entrance "ISO Cafè"
Click picture to enlarge


Interior Expo. Cars&Motorcycles - Museum
Click picture to enlarge 


Interior "ISO Cafè"
Click picture to enlarge


Interior "ISO Cafè"
Click picture to enlarge


Interior Restaurant
Click picture to enlarge

 
 

Tavole del progetto di recupero area ex ISO-Rivolta

 
Iso Millennium Committee, whose Marco Cesana is now a member, wishes that the opportunities provided for the istititutions through these projectual studies will a day become a splendid reality for everyone.

The Official Presentation Ceremony (Bresso, November 26th , 2001)
  

 
GALLERIA_LIGHT.jpg (68446 byte)
Sopra la platea
ZAGATO.jpg (37875 byte)
Zagato
RAGGI&FLA.jpg (18597 byte)
Pierluigi Raggi & Flavio
MARCO_E_LUCA.jpg (30190 byte)
Marco Cesana & Luca Frigerio
SALA26fotoPlatea.jpg (65115 byte)
Il pubblico attento
SALA26fotoIrene.jpg (68680 byte)
Irene ( Iso Millennium PR )

Bresso, 26 November 2001  

 


 THE PETITION (2000-2001)
A monument to save  

The Iso Millennium Committee is trying to make true a suggestion coming from many Iso friends who had the possibility to visit the ex-Iso factory in occasion of the Iso Millennium event.

The idea is: “The old Iso factory could be an important monumentf for anyone loving these beautiful cars and bikes. So we think that it will be a terrible mistake to knock down the entire Iso factory, and that if even a little portion of it could survive it would be an excellent, and most appropriate home for the proposed Iso Museum.”
In fact, the idea of an Iso Museum is agreed by the Bresso town Council authorities, who want instead to build it in an other place, and demolish the entire Iso factory. The whole building could be considered as a great area not only to host the Iso Museum , but also a space large enough to organise exhibitions, conventions, meetings, since it rises in the heart of Bresso, on its main street.

That is why we have decided to put together a petition on the Internet , just to ask our Iso friends all over the world to concur to make real this idea.

Iso Petition

Here is the official reason of this petition. The text has been written by some Iso enthusiasts who could admire the vehicles and the factory last October in Bresso.

 “We, the undersigned friends of Iso, strongly urge the Bresso Town Council not to demolish the Iso factory in Bresso. This historic monument to both the Iso company, and the town of Bresso, is a very important part of history that should be preserved for future generations. We ask that the Bresso Town Council consider saving the building, either in its entirety or in part, to establish therein an Iso Museum, to showcase the beutiful cars and motorbikes that Iso produced. We kindly ask that you please consider our urgent request. Thank you.”

Iso-Petition: the subscribers

Nome Cognome Domicilio Nazione
        
         
       
       

This may be an example of the "record" for the petition. The addition of other fields, for more info about the subscribers, is free, as you prefer.

Attention! 
If is possible, please support this initiative publishing it on your web-site or your magazine as soon as possible!
We need to present results of this campaign to the Bresso Administrators within September 2001.

If you have subscribers signs (on paper) to send us, send them at this address:

Comitato Iso Millennium
c/o Polesana
Via Toselli, 47
20091 Bresso (MI)
ITALY

We hope we shall have your name among the friends that helped the birth of the Bresso-Iso-Museum, in which will be hold the files of this petition together with other Iso-history documents! 

Thank you for all!!!


The Iso Millennium committee